SchöneTomaten.de

Startseite Stabtomaten Fleischtomaten Cocktailtomaten Sonderformen Erntebilder

Tomatenhaus

Nachdem ich in den Jahren 2000 und 2001 doch erheblich mit der berüchtigten Kraut- und Braunfäule zu "kämpfen" hatte, entschloß ich mich, 2002 doch wenigstens einen Teil der Pflanzen zu überdachen.

Alles was für diesen Zweck angeboten wird, ist entweder zu schmal, oder zu niedrig, auf jeden Fall aber zu teuer.

Auf <Michaels Tomatenseite> habe ich dann den entscheidenden Hinweis für den Bau eines Tomatendaches gefunden.

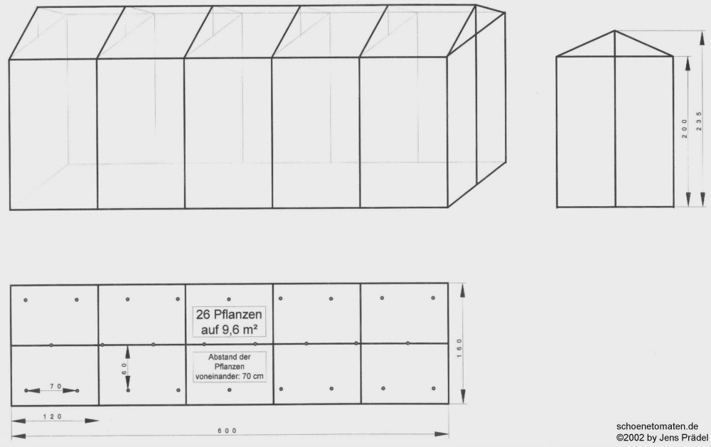
Ziel war es, möglichst viele Pflanzen auf einem 6 Meter langen Beet zu überdachen unter der Voraussetzung, daß zwischen den Pflanzen mindestens 70 cm Abstand vorhanden sein sollte. Das führte mich zu dem nebenstehenden Entwurf.

größere Skizze

Also 26 Pflanzen auf knapp 10 m².

Als Baumaterial verwendete ich bis auf eine Ausnahme alles so wie auf <Michaels Tomatenseite> beschrieben. Anstelle der Vierkanthölzer wurden Dachlatten (24x48) in 2- und 3m-Länge verwendet.

Begonnen wurde mit dem eigentlichen Dach des Hauses: 2 gleiche, 3m lange Teile entsprechend dem nebenstehenden Foto.

Danach wurden 2 Grundrahmen (im Bild rechts an der Wand angelehnt) gefertigt. Diese wurden plan auf die Erde gelegt, miteinander verbunden und anschließend die "Träger" (2 m lange Dachlatten) in 1,20 m Abstand auf diesem Grundrahmen befestigt. Das ist der kritische Augenblick der Konstruktion. Hierfür sollte man sich nicht unbedingt einen stürmischen Tag aussuchen.

Für das anschließende Aufsetzen des Daches sind mindestens 2 (besser 3) (großgewachsene) Personen notwendig.

Nachdem alles gut verschraubt ist und auch die beiden Dachteile fest miteinander verbunden sind, ist es noch unbedingt notwendig, das Gerüst insbesondere in den Ecken (oben und unten) zu versteifen.

Man kann das auf dem Foto mit dem fertigen Geruest gut erkennen.

Es sieht zwar ein wenig übertrieben aus, aber es sollte schon völlig starr sein, bevor die Folie daran befestigt wird und einen Sturm sollte es ja später auch überstehen.

Die Gitterfolie (transparent mit grünem Gitter, UV-beständig, Antitau-Effekt) hatte ich mir von der Firma dm-Folien liefern lassen.

Größe der Folie: 4x6 m am Stück

folien-shop

Um die Folie über das Gerüst zu legen, sind wiederum mindestens 3 Leute erforderlich.

Es empfiehlt sich die Nordseite des Hauses nahezu zu schließen.

Die Folie wurde festgetackert.

Zum Schluß wurde das Haus in den Ecken durch in das Erdreich eingeschlagene Pfähle, die anschließend mit dem Haus verbunden wurden, fixiert.

FERTIG!

Zeitaufwand: ca. 2 Tage

Hier gibt es noch weitere Bilder aus den Jahren 2002 und 2003

Startseite Stabtomaten Fleischtomaten Cocktailtomaten Sonderformen Erntebilder